- •全國免費試用政策 - 先試用后付款 - 最長180天免費試用期
- • 免息金融支持 - 提供融資租賃及其它多樣性資金支持
- • ISO9001質量體系認證
- • UL/GS/CQC/ROHS/PAHS/WEEE認證
- • 對來料檢實行AQL高要求,關鍵部件100%全檢
- • 嚴格的功能測試程序,譬如基本功能測試/長期磨損/壽命/跌落測試等
- • 產線一次合格率為99.99%,多重測試確保出廠品質
- • 全球退貨率小于1%,覆蓋廣泛的客戶服務網絡
- • 2個小時內回復客戶投訴
詳細描述:
YD-500S 工業紙類粉碎機|切條切片設備|紙板與纖維材料處理機
?? 產品簡介
YD-500S是一款用于紙類及纖維材料處理的工業粉碎設備,采用切條或切片結構設計,適用于紙板箱、包裝材料及木質纖維等物料的粉碎處理。
設備支持連續運行,適用于工廠、包裝行業及材料回收處理場景,是傳統碎紙機向工業材料處理設備升級的重要產品。
?? 核心優勢
切條 / 切片雙處理方式
支持紙板、紙箱及纖維材料粉碎
大入口設計,適合板材類物料
支持24小時連續運行
工業級結構,穩定耐用
適合材料回收與再利用
?? 應用場景
適用于:
包裝材料處理(紙箱 / 紙板)
電商 / 倉儲緩沖材料生產
工廠廢料處理
材料回收與再利用
木質纖維處理
?? 可粉碎物料
瓦楞紙箱 / 紙板
包裝材料
木質纖維板
菲林 / 標簽
片狀紙類材料
?? 技術參數
| 參數 | 數值 |
|---|---|
| 進紙寬度 | 約270 - 2000mm(可選) |
| 粉碎方式 | 切條 / 切片 |
| 粉碎尺寸 | 6–100mm(可調) |
| 功率 | 1.5 - 22KW |
| 電壓 | 380V(三相電) |
| 連續工作 | 支持24小時 |
| 處理能力 | 工業級連續處理 |
| 適用物料 | 板材 / 紙類 / 纖維 |
?? 安全與功能(工業級)
工業級進料結構
過載保護系統
穩定連續運行
操作簡單可靠
?? 定制與擴展
可定制不同切條尺寸
可接輸送帶系統
可組成生產線
可用于包裝填充材料生產
?? 產品定位
本機適用于:
?? 包裝材料處理與再利用
?? 工廠廢料處理
?? 非文件類材料粉碎場景
?? 為什么選擇越都
20+年粉碎設備經驗
工業材料處理設備體系
支持定制與整線方案
全球客戶應用經驗
?? 獲取報價(CTA)
?? 獲取報價
?? 獲取解決方案
?? 聯系銷售工程師

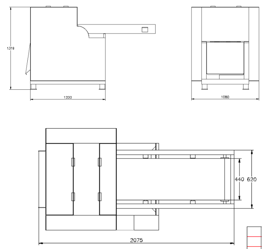
產品參數 |
型號 | YD-500S |
輸送帶長 | 1.6米 |
輸送帶寬 | 650mm |
進紙寬度 | 510mm |
入料口高 | 2.5CM |
碎條效果 | 6 - 100mm |
進料厚度 | 6mm |
碎紙速度 | 6米/分鐘 |
噪音等級 | 60dB |
機器凈重 | 500KG |
額定功率 | 5.5KW, 380V |
外形尺寸 | 2.1*1.1*1.32m |
出料方式 | 280L廢紙簍 或 外接輸送帶/風管 |
備注:
?? 下單時請指定粉碎尺寸,建議10mm條狀,下單確認后無法更換。?? 可定制切片或者粉末狀效果,詳詢客服。

刀具耐磨、使用壽命長,適合多種材料的粉碎;粉碎效果:根據
客戶要求,出料條狀或者出料片狀(下圖)。出料方式:可外接出
料輸送線或中央吸風管道。可碎:木質纖維素,紙張,菲林,紙箱,等。
各類材料效果(條狀 和 塊狀) |


設備詳情圖 |
![]() | ![]() | ![]() |
![]() | ![]() | ![]() |

安裝尺寸圖(三視圖) |

注:設備更新換代后尺寸會有變化,請下單前與客服確認精確的安裝尺寸。
案例X:??資源回收現場 |
![]() | ![]() |
![]() | ![]() |

案例Y:800某工廠交付 |
![]() | ![]() |
![]() | ![]() |
案例Z:800某包裝廠 |
































